角度分辨率
一、什么是角度分辨率?
角度分辨率是指激光雷达在扫描探测过程中,相邻两个激光探测点主轴线在测距中心处所形成的夹角。根据扫描方向,可分为水平角度分辨率与垂直角度分辨率。
水平角度分辨率:沿方位角(Azimuth)方向,相邻探测点主轴线在测距中心的夹角。它决定了激光雷达对横向目标(如车辆、行人、路肩)的分辨能力。
垂直角度分辨率:沿俯仰角(Elevation)方向,相邻探测点主轴线在测距中心的夹角。它决定了激光雷达对高度信息(如地面、路沿、障碍物高度)的分辨能力。
角度分辨率的物理意义可通过空间分辨尺寸直观体现:
在目标距离 d 处,角度分辨率 θ 对应的最小可分辨尺寸$\Delta L$ 满足:
$$\Delta L = d \cdot \tan(\theta) \approx d \cdot \theta \quad (\theta \text{ 以弧度计})$$
对于相同的角度分辨率,目标距离越远,可分辨的最小尺寸就越大,空间分辨能力越弱;对于相同的目标距离,角度分辨率越高(数值越小),可分辨的最小尺寸就越小,空间分辨能力越强。
以图 1 为例,在 30 米的距离上:0.10° 的水平分辨率,可分辨约 5cm 的物体;1° 的垂直分辨率,可分辨约 50cm 的物体。说明更高的角度分辨率意味着更强的细节捕捉能力。
如果把激光雷达比作相机,角分辨率就是像素密度,比如:在 200 米外,低角度分辨率下,一个行人可能只被少数几个激光点覆盖,导致特征不足,难以区分。而高角度分辨率行人身上能分布 10 几个点,系统能清晰看到人的四肢轮廓,从而实现精准识别。
二、影响因素
(1)扫描时序与采样匹配:
角度分辨率受扫描机构(电机/微镜)与激光点频的同步性影响。若步进角(采样间隔)过大,点云分布过稀,会导致远距离小目标落入点云间隙,造成信息丢失与感知盲区;若步进角过小则会导致数据冗余,且在超过物理极限时无法有效提升分辨率。测试需确保实际步进角与理论设计保持一致,确保空间采样的均匀度。。
如图2 [2] 所示,垂直通道越多,激光点频越高、垂直步进角越小,点云越密集,垂直角分辨率越高,物体与场景细节还原更清晰。
(2)光束物理特性约束:
激光发散角决定了分辨率的物理上限。随距离增加,过大的发散角会导致相邻光斑在空间上发生物理重叠与回波混叠,使系统无法分辨紧邻的两个障碍物(如远处的行人与灯杆),从而削弱了雷达的空间分辨能力。
如图3 [3] 所示,飞机高度为1000 m时,左侧激光发散角为 0.7 mrad,地面光斑直径为0.7 m;而右侧激光发散角为0.3 mrad,其地面光斑直径:0.3 m。说明激光发散角越大,在相同距离下的光斑越大,可分辨的最小目标尺寸也越大,从而限制了系统的空间分辨率。
(3)扫描指向与控制精度:
扫描机构的角度控制线性度及光学组件的装配公差直接影响指向精度。若系统出现动态抖动或非线性偏移,会导致点云排列交错、边缘轮廓模糊,从而降低自动驾驶算法对物体几何特征提取的准确性。
如图4 [4] 所示,图 (a) 中,红色框内的点云出现明显的排列交错、边缘扭曲,原本平滑的道路边缘呈现锯齿状错位。图 (b) 中,同一路段的点云排列整齐、边缘清晰,轮廓还原准确。直观体现了扫描机构与光学组件精度对指向精度的影响:精度不足会导致点云畸变,降低自动驾驶感知准确性。
三、如何测角度分辨率?
角度分辨率是车载激光雷达的核心性能指标,直接决定点云疏密程度与目标几何特征提取能力。以下依据 GB/T 45500-2025 相关规定,详细说明角度分辨率的测试条件、操作流程与判定方法。{注 : 本试验方法不适用于采用 MEMS技术的激光雷达。}
(1)测试条件:
环境设置:
设备推荐:
研鼎自主研发的车载激光雷达自动化测试系统,匹配国标 GB/T 45500-2025 规定的测试方法,可全自动完成测距、角度分辨率等指标测试项,实现从设备控制、数据采集到报告输出的一站式标准化验证。本次测试所采用的 90% 漫反射板、自动图卡切换支架、移动导轨等核心设备,均集成于该系统中。
参数要求:
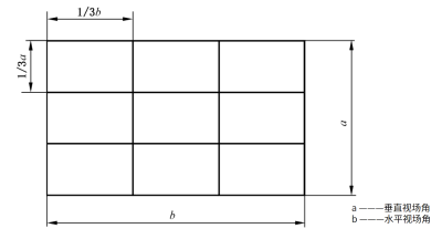
9个视场划分:
(2)操作步骤:
(a)按照图 5 的试验布置,将激光雷达安装在高精度转台上。在距激光雷达水平距离为$(d_{\text{Nmin}} + 1\ \text{m})_{-5}^{+5}\ \text{cm}$m 处,垂直于地面放置一块 90% 漫反射板(推荐尺寸为 1 cm × 1 cm)。将激光雷达与点云可视化设备连接,用于实时观察雷达输出的点云数据。
(b)绕测距中心旋转激光雷达,使漫反射板进入激光雷达的某一视场区域。缓慢水平旋转激光雷达,记录打在漫反射板左边缘或右边缘的点云从 “第 2 个 / 列点云” 变为 “第 3 个 / 列点云”(即场景 A 切换到场景 B,参考图 8)时,高精度转台转过的角度。
(c)重复上述测量步骤不少于 5 次,取多次测量角度的平均值,作为该视场区域的水平角度分辨率。
(e)以同样方式垂直旋转激光雷达,记录漫反射板上或下边缘位置的一个或一列点云变化高精度转台转过的角度,重复测量不少于5次,计算高精度转台转过的角度的平均值即为该视场区域垂直角度分辨率。
(f)重复b~d操作,测量其他视场区域的水平角度分辨率和垂直角度分辨率。
(3)结果分析
当激光雷达的角度分辨率与标称值之差不应大于0.25倍标称值,则符合标准要求。
图片来源:
[1] https://www.analog.com/en/resources/analog-dialogue/articles/lidar-for-autonomous-system-design-object-classification-or-object-detection.html
[2] https://inertiallabs.com/wp-content/uploads/2024/09/Screenshot-2024-09-10-162547.jpg
[3] https://www.researchgate.net/figure/llustration-of-LIDAR-beam-divergence-Horizontal-and-vertical-distances-are-drawn-in_fig2_237372271
[4] https://www.researchgate.net/figure/An-example-of-point-cloud-distortion-correction-a-The-point-cloud-before-correction_fig13_331102582











